
Elegance
It won’t take you long to realise why we named this home the “Elegance”.
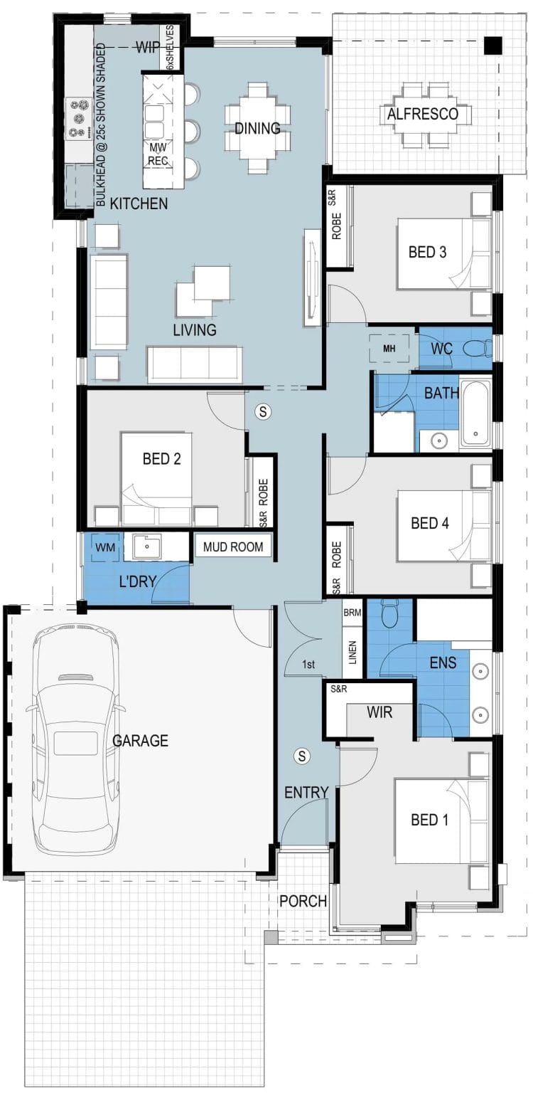
This home’s elevation provides a classic frontage with a modern edge. With the Master Suite situated on the right of the
home, make your way down the hallway passed the three Bedrooms into the open Living and Kitchen area, and you’ll soon see that this home just flows. Another stunning new home design from Perth’s trusted home builders.

We Work With Industry Leaders

